back-button← späť

Stavebný pozemok, Martin - Záturčie

Predaj, Pozemok pre rod. domy, Martin, Svahovitý

Cena: 85 za m2

1712 m2

Údaje nehnuteľnosti

ID nehnuteľnosti: 573
Druh ponuky: Predaj
Druh nehnuteľnosti: Pozemok pre rod. domy
Mesto/obec: Martin
Stav nehnuteľnosti: Svahovitý
Plocha pozemku: 1712m2

Popis nehnuteľnosti

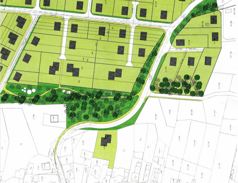
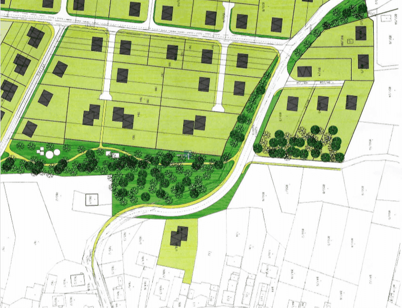
Ponúkame na predaj stavebný pozemok o výmere 1.712 m2. Nachádza sa v Martine mestskej časti Záturčie v pripravovanej novej lokalite výstavby rodinných domov. Územný plán povoľuje výstavbu rodinného domu s dvomi nadzemnými poschodiami. Lokalita nadväzuje na súčasnú zástavbu rodinných domov s dobrou perspektívou do budúcnosti umožňujúcou bývanie v meste s dobrou dostupnosťou do centra. Pozemok je vhodný aj ako investícia nepodliehajúca inflácii.

Cena: 85,-€/m2

Kontakt na predajcu

Máte záujem o túto nehnuteľnosť?

Napíšte nám

Kliknutím na tlačidlo ODOSLAŤ súhlasíte so spracovaním Vami zadaných údajov za účelom zodpovedania otázky či podnetu adresátom správy, ktorým je spoločnosť ALT REAL, s. r.o.. Bližšie informácie o spracovaní a ochrane osobných údajov nájdete v sekcii "GDPR - Spracovanie osobných údajov".

Správu sa nepodarilo odoslať
Správa úspešne odoslaná